Services Portfolio Process Pricing FAQ Service Area
Dark mode
Get a Quote
Real Estate Floor Plans & Architectural As-Built Drawings

Your property,
precisely captured.

We show up, measure every wall by hand, and turn it into clean, accurate floor plans and as-built drawings you can actually put to use.

3-story home main level floor plan
Accuracy
Wall-to-wall
48–72hr
Floor plan turnaround
100%
Hand-measured on site
Local
Bay Area based
2 Services
Real Estate Floor Plans & Architectural As-Built Drawings

What We Do

Two ways to document
any property

Real Estate Floor Plans

Drawn to scale from wall-to-wall measurements taken on site. Every dimension is captured by hand, then drafted into a clean, professional format ready for listings, marketing, or your own records.

  • Precise hand measurements, not estimates
  • Multi-level layouts (main, upper, lower, attic)
  • Site plans available
  • Residential and commercial properties
  • Unfinished space pricing available

Architectural As-Built Drawings

A full record of a building as it actually exists today. Great for renovation planning, permit applications, property records, or handing off to a designer or contractor. Every project is custom quoted based on what you need.

  • Exterior and interior elevations
  • Building sections
  • Electrical plans and reflected ceiling plans
  • Roof plans and site plans
  • Window schedules
Email for a Custom Quote

Portfolio

Recent work

Residential, multi-level, and commercial properties across the Bay Area.

3-story home upper and lower levels
3-Story Home, Upper & Lower Levels
Site plan
3-Story Home, Site Plan
Single family home
Single Family Home
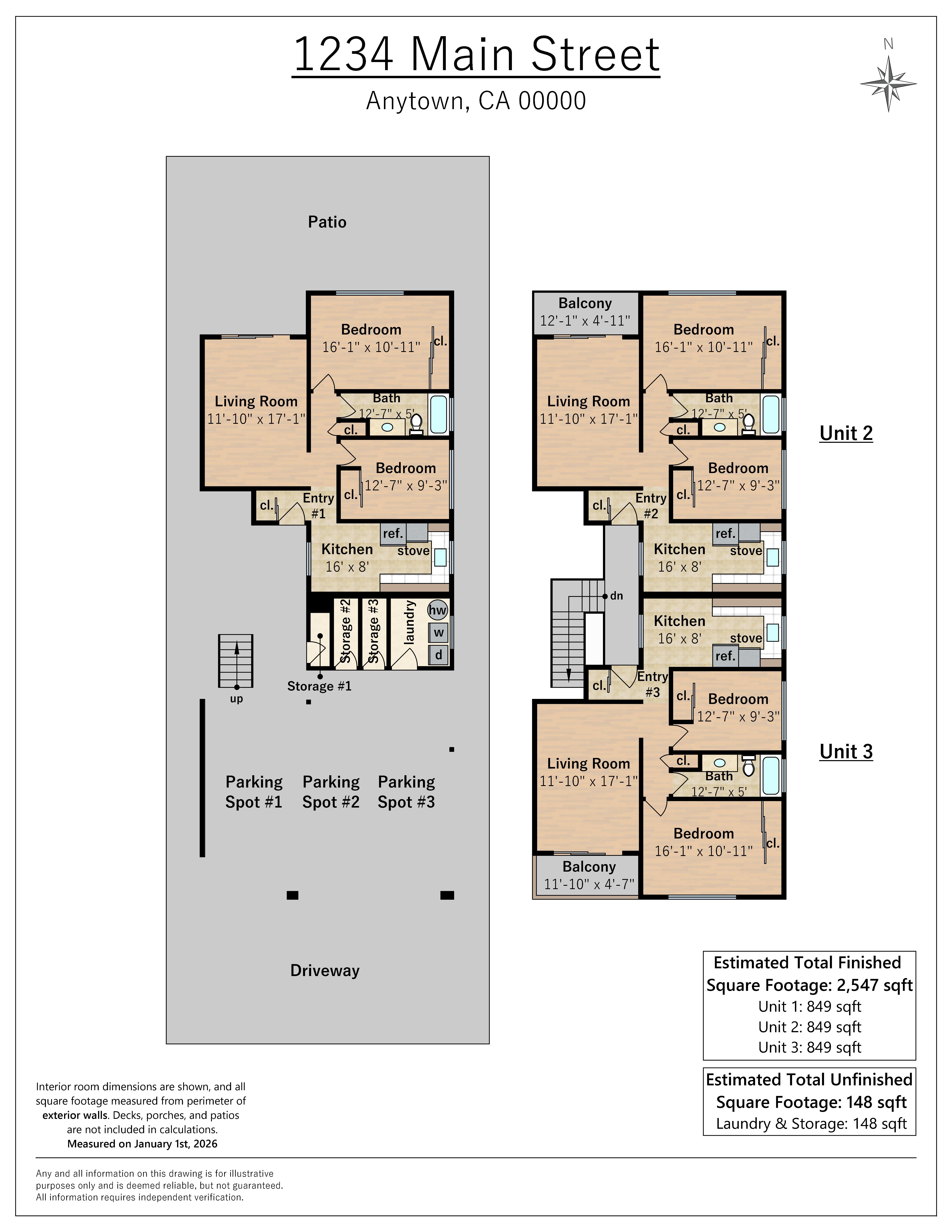
Apartment building
Multi-Unit Apartment
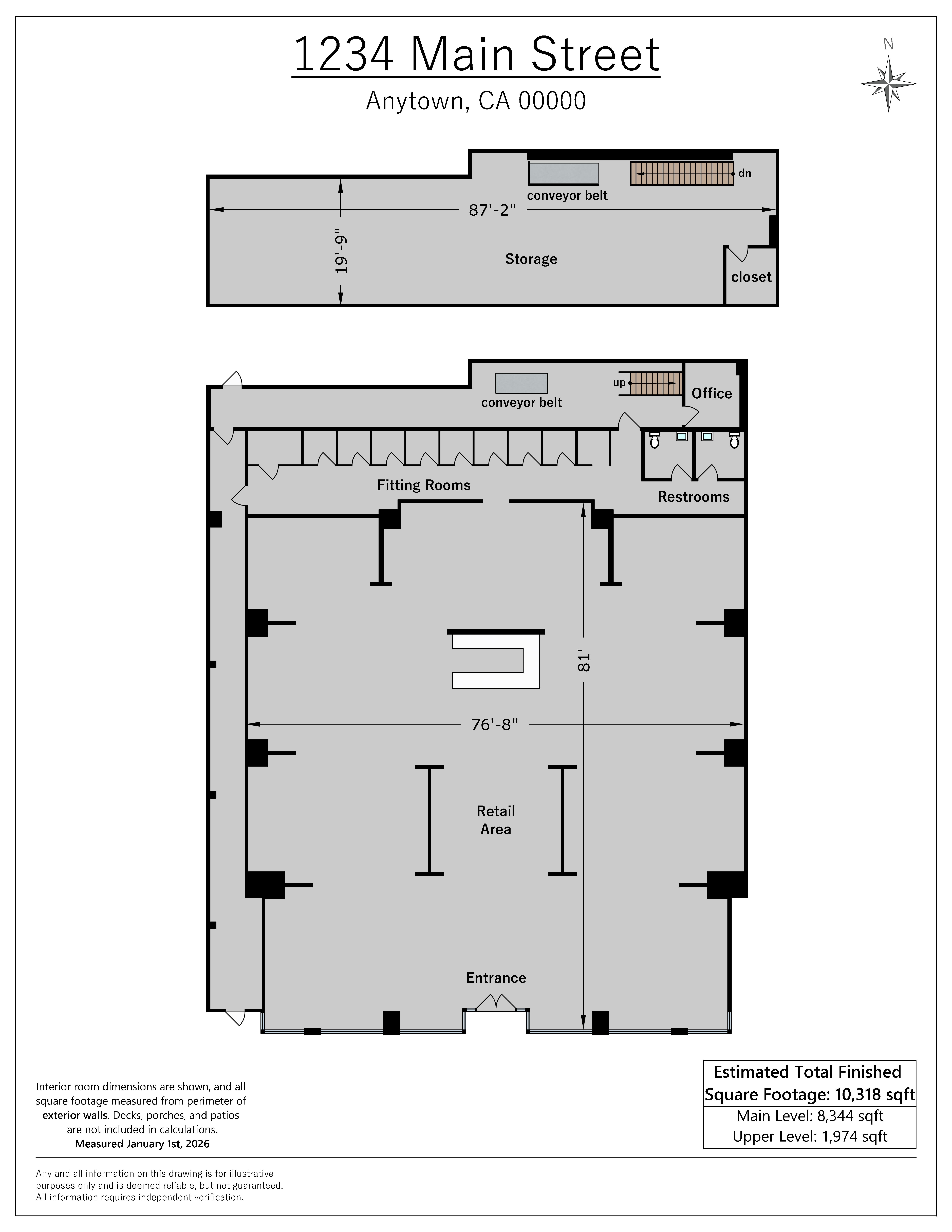
Commercial building
Commercial Building
As-built main level
As-Built: Main Level
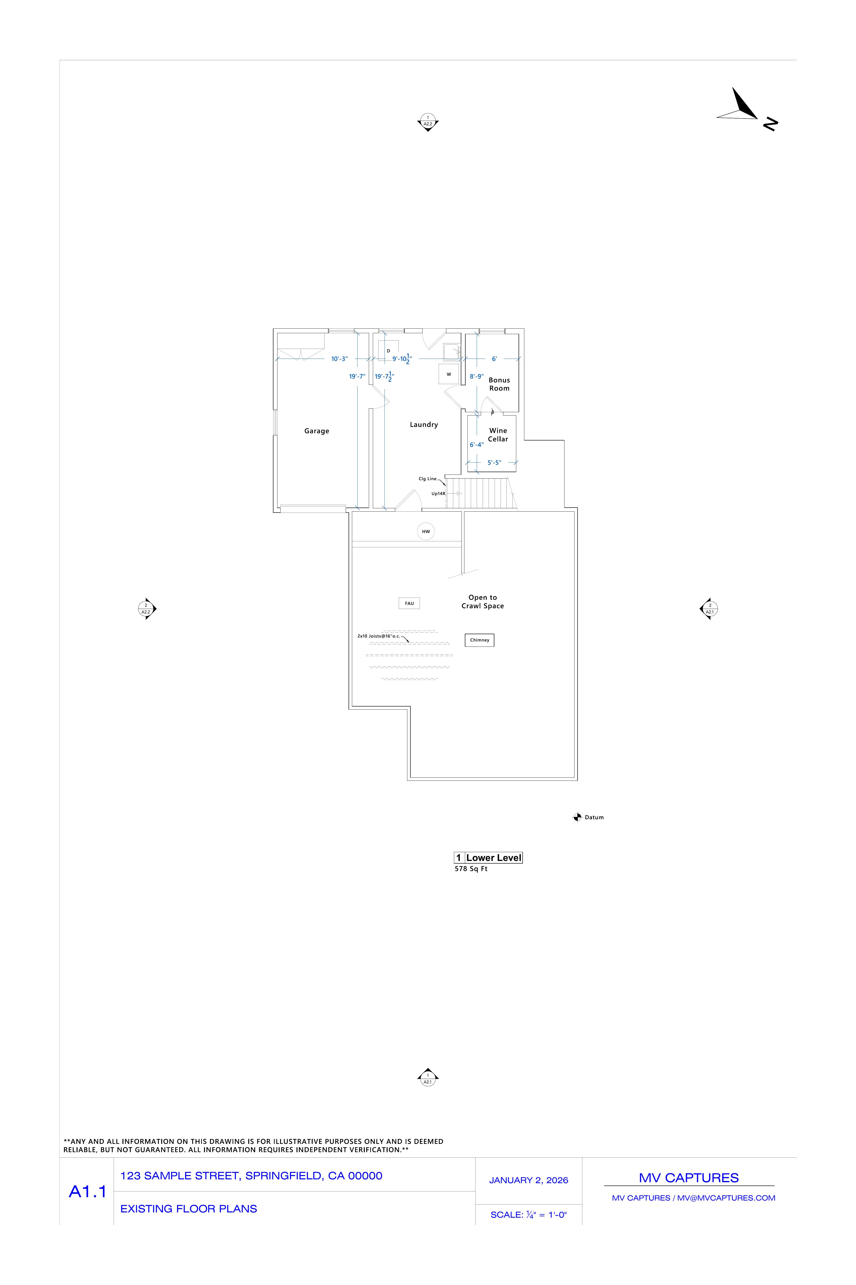
As-built lower level
As-Built: Lower Level
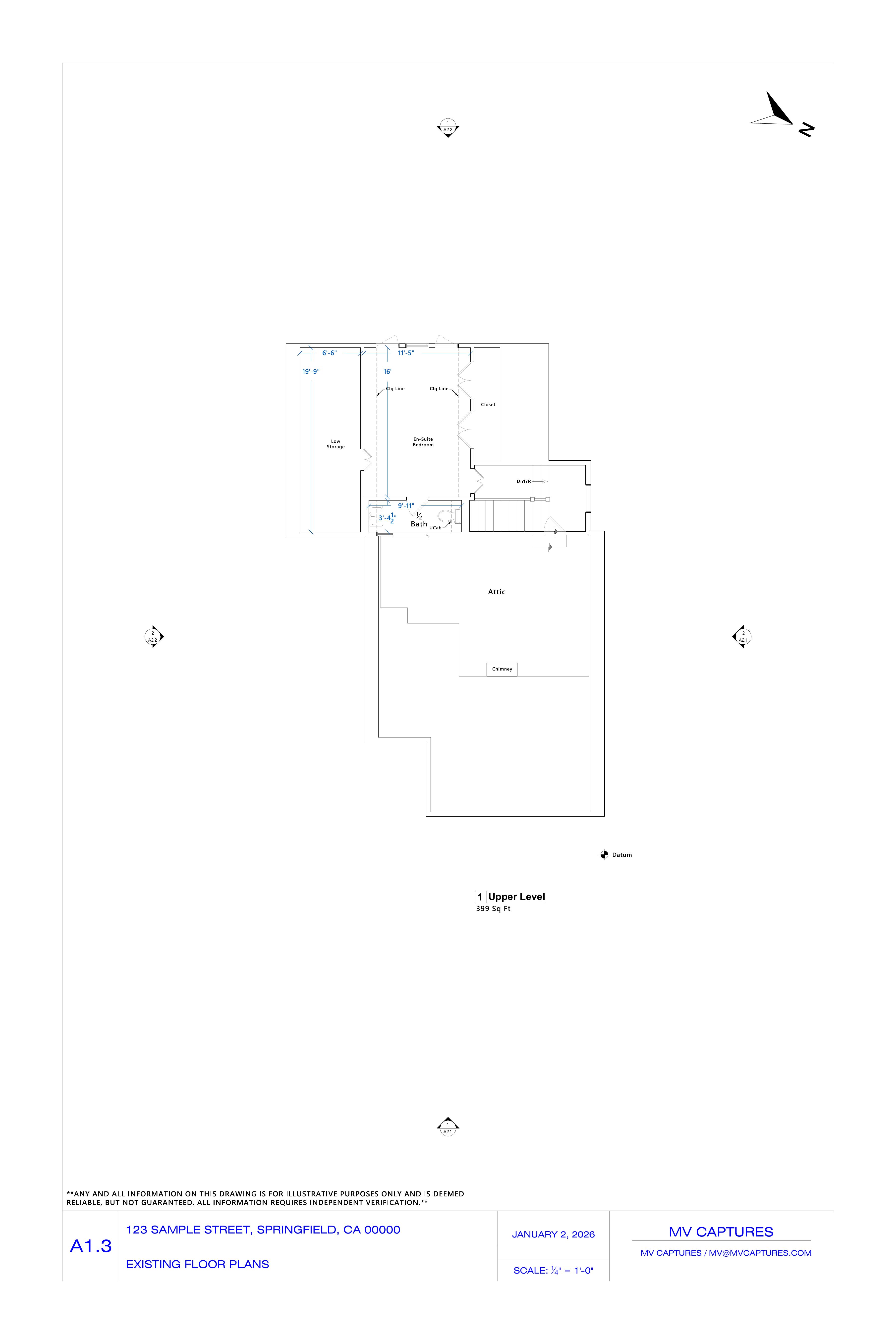
As-built upper level
As-Built: Upper Level
East and north elevations
As-Built: Elevations (East & North)
West and south elevations
As-Built: Elevations (West & South)

How It Works

Simple, fast, and local

No complicated onboarding. Just reach out and we'll take it from there.

01

Get a Quote

Send us your property size and what you need. We'll get back to you within a few hours with pricing and availability.

02

Schedule a Visit

We find a time that works for you and come out to the property to take precise wall-to-wall measurements and document existing conditions.

03

We Get to Work

Measurements are taken by hand on site, then drafted digitally into clean, professional drawings.

04

Delivery

Your files arrive ready to use, whether that's for a listing, a permit application, a renovation, or anything else you have in mind.

Typical turnaround: 48–72 hours for floor plans, approximately one week for as-built drawings — from the date of the site visit.

FAQ

Common questions

We follow ANSI Z765-2021 standards, measuring to the exterior walls with a minimum ceiling height of 5 feet to qualify as finished area.

Yes — we measure everything that is accessible and within reason. If an attic or crawl space is too small to be habitable by any practical standard, we may not include it, but most spaces are documented.

Yes. That said, our site plans are intended for visual purposes only and are not a replacement for a licensed survey. For as-built drawings, site plans typically show approximate fence setbacks, driveways, face of curb, and neighboring property and building lines.

Yes. Edits such as changing room labels or updating finishes like flooring colors are included. If an edit affects square footage calculations, pricing will be adjusted accordingly.

Pricing

Straightforward, flat-rate pricing

Floor plan rates are based on finished square footage, so you always know what you're paying upfront. As-built drawings are scoped and quoted per project.

Real Estate Floor Plans

Project Size (sq ft) Price
0 – 1,500$240
1,501 – 2,000$290
2,001 – 2,500$340
2,501 – 3,000$390
3,001 – 3,500$430
3,501 – 4,000$470
4,001 – 4,500$510
4,501 – 5,000$550
5,001+$0.11 / sq ft
Unfinished Spaces$0.06 / sq ft
Site Plans$75+ (based on complexity)

Architectural As-Built Drawings

Custom Quote

As-built packages are priced based on your project's scope and what you actually need. Available deliverables include:

Tell us what you're working on and we'll put together a quote, usually within one business day.

Exterior Elevations Building Sections Interior Elevations Electrical Plans Reflected Ceiling Plans Roof Plans Site Plans Window Schedules

* Pricing is based on the total square footage measured on site, including all finished and unfinished spaces across all levels.

Service Area

Based in the Bay Area

We're a one-person operation based locally, which means you get direct communication, consistent quality, and someone who actually knows the area.

San Francisco Marin County East Bay Napa & Sonoma Peninsula South Bay San Jose

Not sure if we cover your area? Just ask, we're flexible.

Contact

Ready to get started?

Fill out the form and we'll get back to you within a few hours. Or skip the form and just email us directly.